Built
335m2Plot
300m2Bedrooms
3Bathrooms
2598.000€
Built
335m2Plot
300m2Bedrooms
3Bathrooms
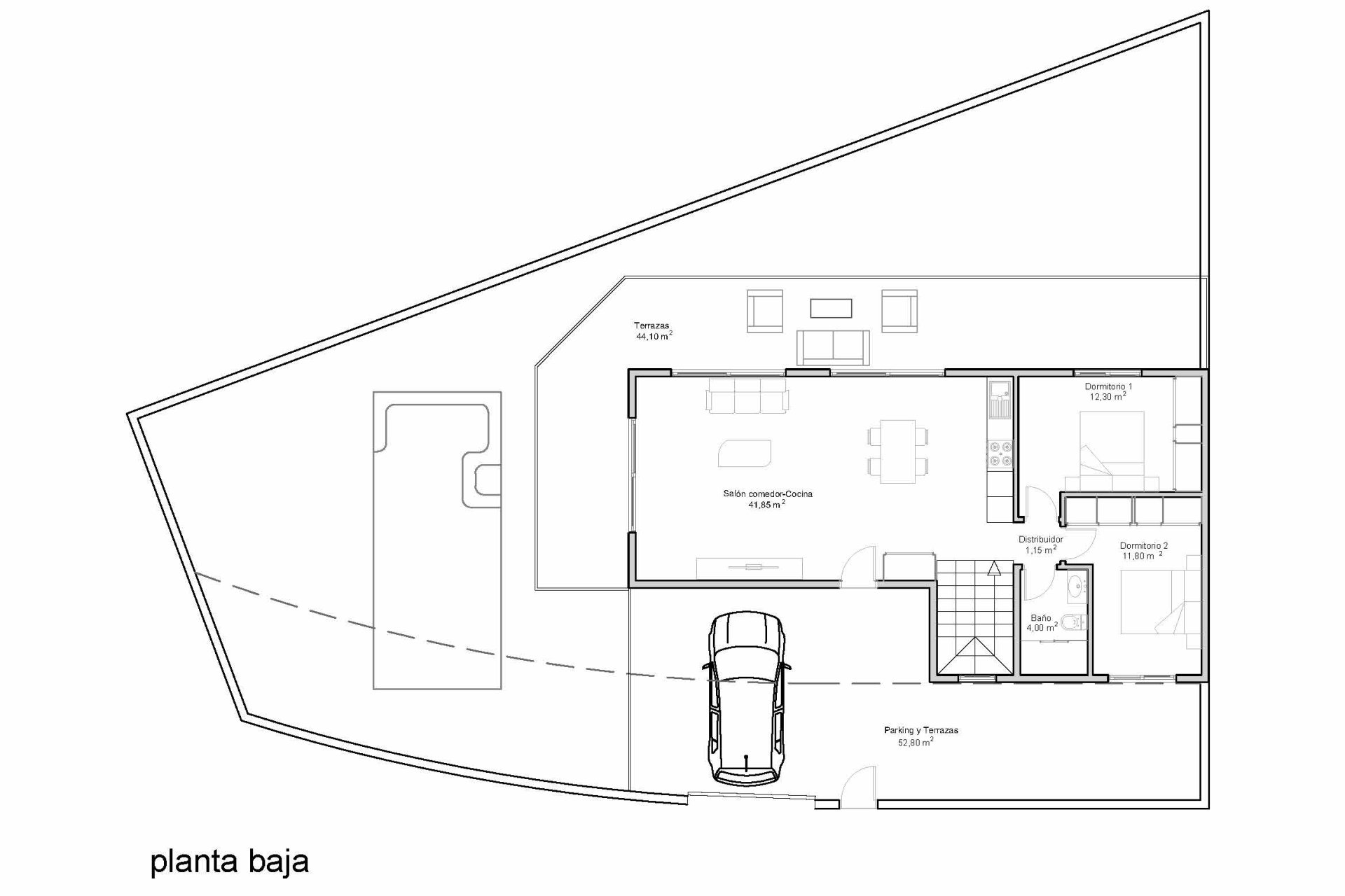
2Located in charming Ciudad Quesada, this exclusive collection of 8 townhouses offers an ideal residential setting for those seeking a modern and functional home. The proximity to the airport, just 7 kilometers away, provides excellent connectivity for frequent travel. The townhouses are designed to offer comfort and style, with options of 3 bedrooms and between 2 and 3 bathrooms, adapting to the needs of different families. The location in Ciudad Quesada ensures a peaceful and pleasant environment, perfect for enjoying life on the Costa Blanca.
OUTDOOR AREAS
The outdoor spaces of these townhouses are designed to maximize enjoyment of the Mediterranean climate. Each property features a private garden, ideal for creating a personal green space or enjoying outdoor moments. Additionally, residents can enjoy a private pool, perfect for cooling off during warm summer days. The terraces offer additional space for relaxation or hosting outdoor gatherings. For those seeking panoramic views, there is the option of a solarium, providing an elevated place to enjoy the sun and views of the area.
INDOOR AREAS
The interiors of the townhouses are designed with attention to detail, incorporating modern and functional features. Ceramic floors add an elegant touch and are easy to maintain. The kitchens are equipped with appliances, making daily life easier from day one. Built-in wardrobes in the bedrooms offer efficient storage, keeping spaces tidy and clutter-free. Additionally, some properties feature a jacuzzi, providing a touch of luxury and relaxation at home. The private garage adds convenience and security for vehicle parking.
01-05-2025
3
2
335m2
300m2
159 m2
6000 Mts.
7000 Mts.
1200 Mts.
3095 Mts.